Soluções sustentáveis para um apartamento em São Paulo
PROJETO DE ARQUITETURA SUSTENTÁVEL PARA INTEGRAÇÃO DE SOLUÇÕES ECOEFICIENTES EM UM APARTAMENTO
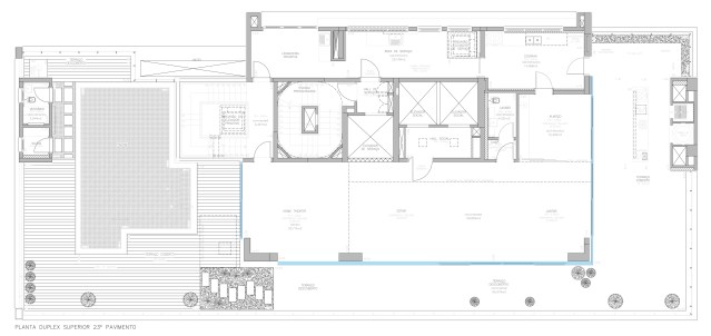
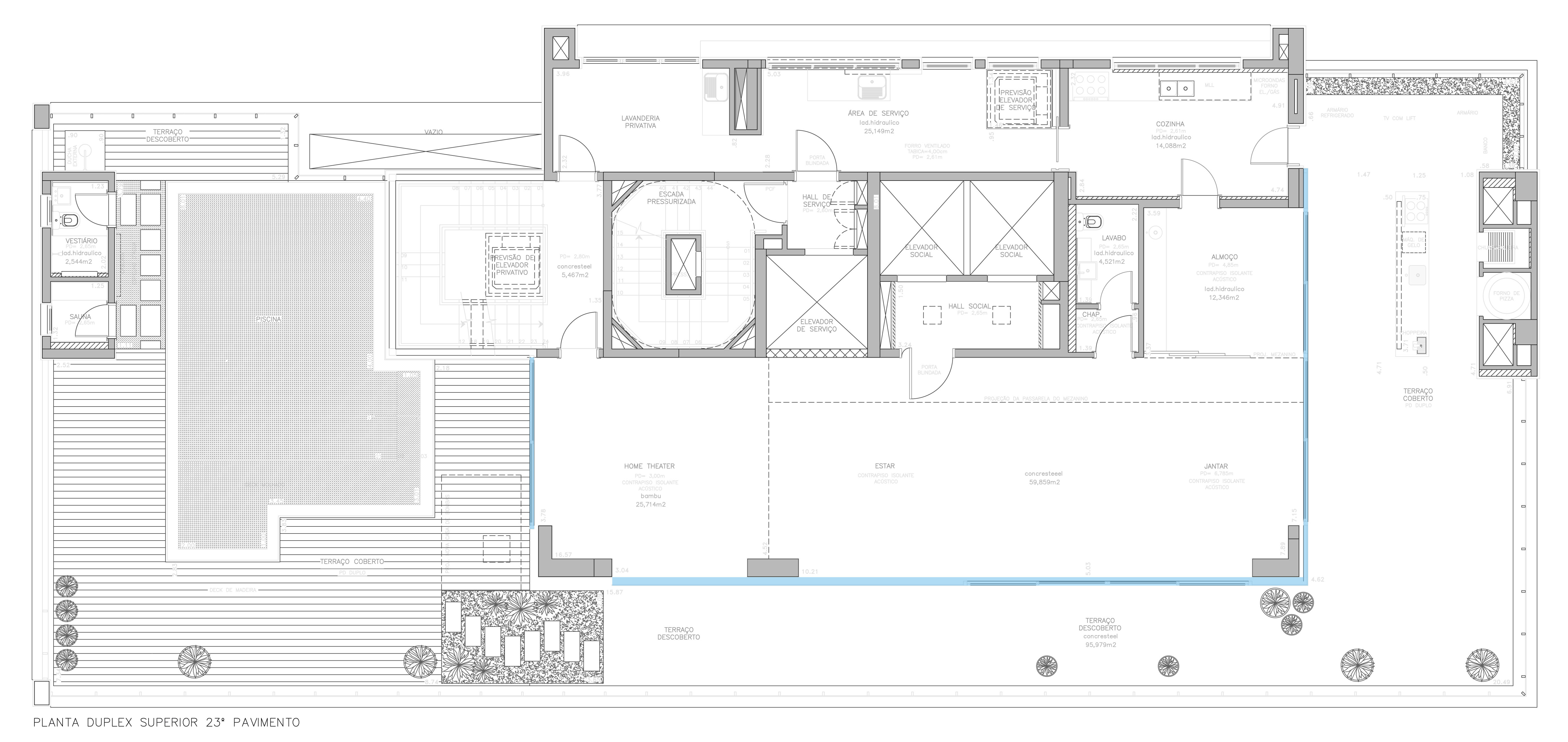
- Localização: Vila Mariana – São Paulo
- Características: Projeto de Arquitetura Sustentável para Cobertura de Apartamento.
Neste projeto foram implantadas as seguintes Soluções Ecoeficientes:
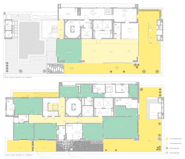
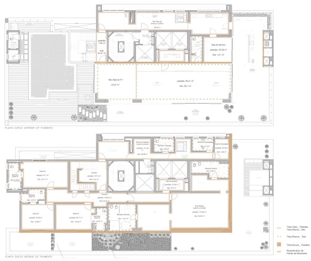
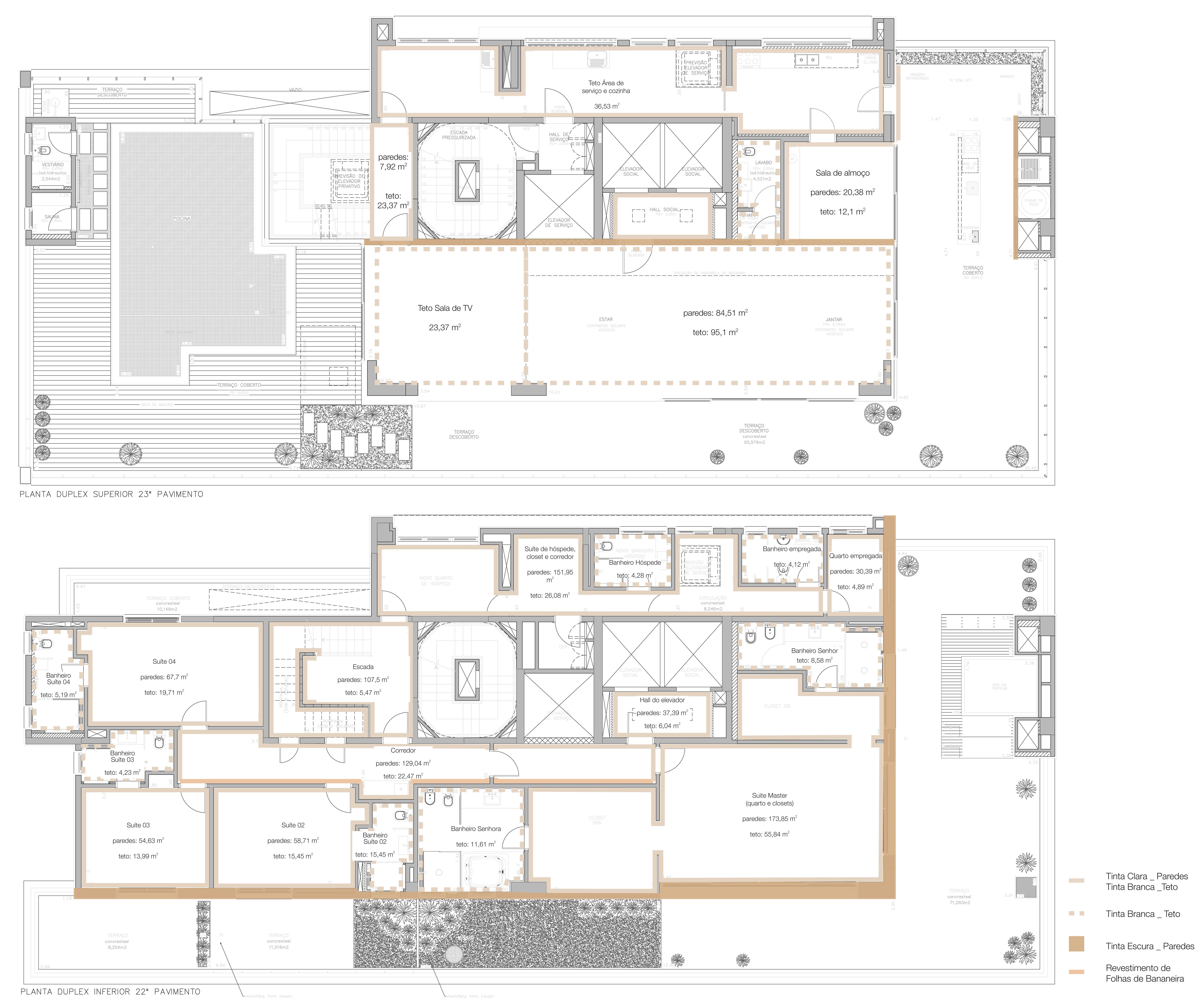
- 1- Materiais Naturais e Recicláveis: para os revestimentos internos e externos foram usados materiais naturais e recicláveis como piso de bambu, painel mad wall, tinta de terra e revestimento de folhas de bananeira.
Benefícios da Tinta de Terra:
Benefícios do Revestimento de Folha de Bananeira: matéria-prima natural e biodegradável.
Benefícios do Piso de Bambu: evita o sobreaquecimento e é uma matéria-prima renovável.
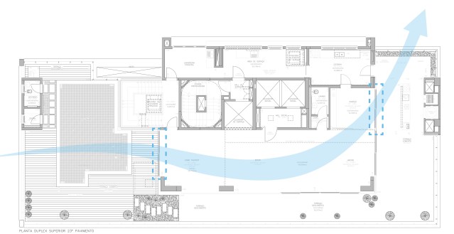
- 2- Bioclimática: é a técnica mais importante na hora de projetar uma residência. Analisamos a direção dos ventos, a trajetória solar e a orientação da edificação de acordo com a localização do projeto.
O projeto apresenta como elementos bioclimáticos as amplas aberturas que contribuem com a ventilação cruzada no interior dos ambientes e possibilitam o aproveitamento da luz do sol durante o dia.
Além disso, foi proposto o uso do filme solar, material que evita o sobreaquecimento e diminui a necessidade de climatizadores artificiais.
3- Tratamento de Resíduos: foi proposta a utilização da Composteira Doméstica, que é capaz de transformar restos de alimentos e demais resíduos orgânicos em adubos com o auxílio de minhocas.
4- Energia: para a economia de energia, adotou-se o uso de Aquecedores Solares. No sistema de aquecimento solar, a água fria da caixa d’água é esquentada no aquecedor solar e é armazenada no reservatório de água quente. Após ser aquecida, a água é direcionada para os pontos de consumo.
Outra solução ecoeficiente proposta foi a instalação de Placas Solares na cobertura, produzindo energia elétrica através de placas solares interligadas à rede EletroPaulo (Grid-Tie).
As placas solares (1) que captam a luz do sol durante o dia. A energia solar captada é levada para um inversor solar (2) que alterna a corrente contínua para alternada. A energia sai do inversor e é conectada à rede elétrica da casa, normamente o sistema é conectado no quadro de luz (3). Essa energia pode ser utilizada pelas luzes da casa e eletrodomésticos (4).
Para saber um pouco mais sobre Energia Solar Fotoltaica, clique aqui!
Além disso, foram adotadas Lâmpadas de Led pois apresentam maior durabilidade e evitam o sobreaquecimento.
5- Paisagismo Produtivo: o projeto apresenta Jardins Verticais, Telhados Verdes e Hortas Urbanas na área externa.
O jardim vertical apresenta uma qualidade de conforto ambiental natural, regulando a temperatura, a umidade e melhoram a qualidade do ar.
Já o telhado verde ajuda no controle da temperatura interna e na absorção de ruídos.
Sistema de Telhados Verdes:
Com as hortas urbanas, a própria moradora pode plantar e colher seus alimentos livres de agrotóxicos. Os alimentos orgânicos são mais saborosos e concentram mais vitaminas, minerais e outros nutrientes em comparação com os alimentos convencionais.
Sistema de Hortas Urbanas Noocity:
Vantagens de Hortas Urbanas Noocity:





















Comentários