Residência com Soluções Sustentáveis em Brasília
PROJETO DE ARQUITETURA SUSTENTÁVEL PARA INTEGRAÇÃO DE SOLUÇÕES ECOEFICIENTES EM UMA RESIDÊNCIA
- Localização: Brasília – DF
- Características: projeto de residência para duas pessoas
O projeto engloba 6 categorias Ecoeficientes:
Funcionamento: A água da chuva é captada pelas calhas dos telhados. Em seguida, a água captada é encaminhada para os filtros, que eliminam as partículas sólidas da água da chuva. Após filtrada, a água da chuva é armazenada em cisternas, essa água poderá ser utilizada nas torneiras de jardim, lavagem de piso e rega de plantas.
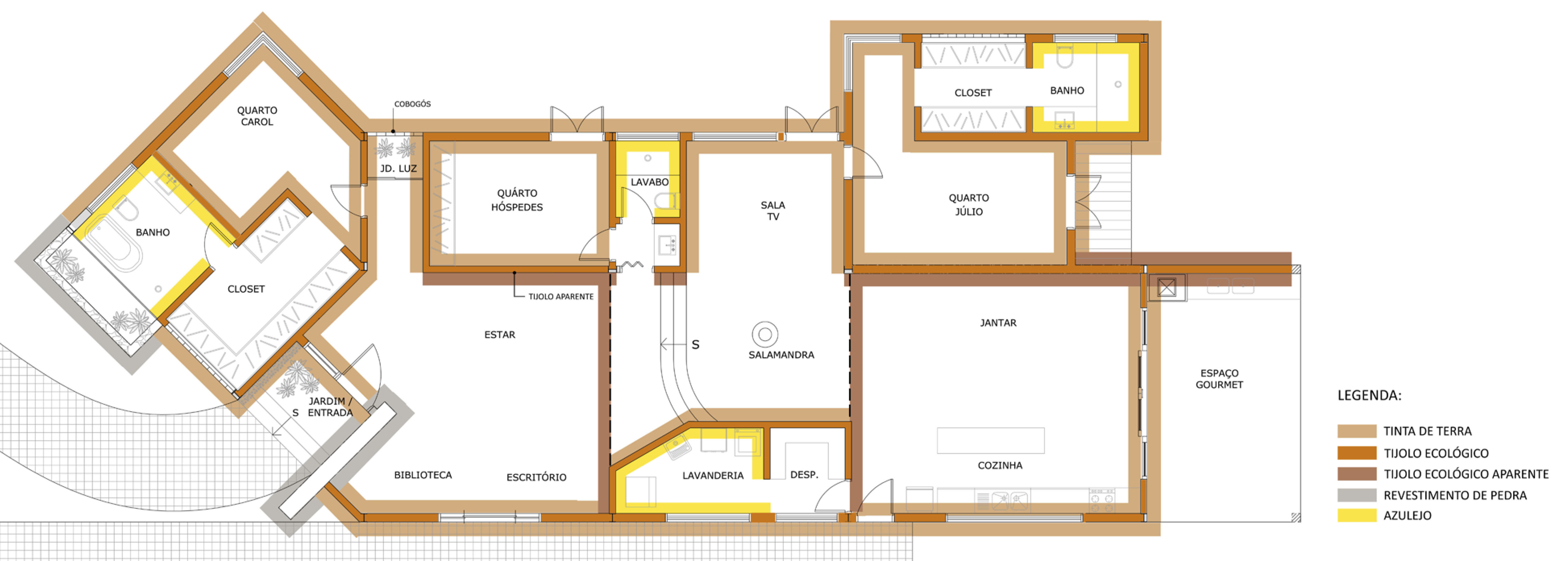
Para revestimentos internos e externos foram usados materiais naturais e ecológicos como: madeira plástica, madeira de demolição, cimento queimado, concregrama, tinta de terra, tijolos ecologicos aparente e revestimentos de pedra.
Benefícios da Tinta de Terra:
A Bioclimática é a técnica mais importante na hora de projetar uma Residência. Analisamos a direção dos ventos, a trajetória solar e a orientação da edificação de acordo com a localização do projeto.
Para esse projeto, foram criadas aberturas na face Leste e Oeste para contribuir com a ventilação cruzada no interior dos ambientes e para o aproveitamento da luz do sol durante o dia.
Foram propostas a utilização de Coleta Seletiva e Composteira Doméstica. Os materiais reciclados podem ser reaproveitados, o que diminui a exploração de recursos naturais.
Já a Composteira Doméstica é capaz de transformar restos de alimentos e demais resíduos orgânicos em adubos com o auxílio de minhocas.
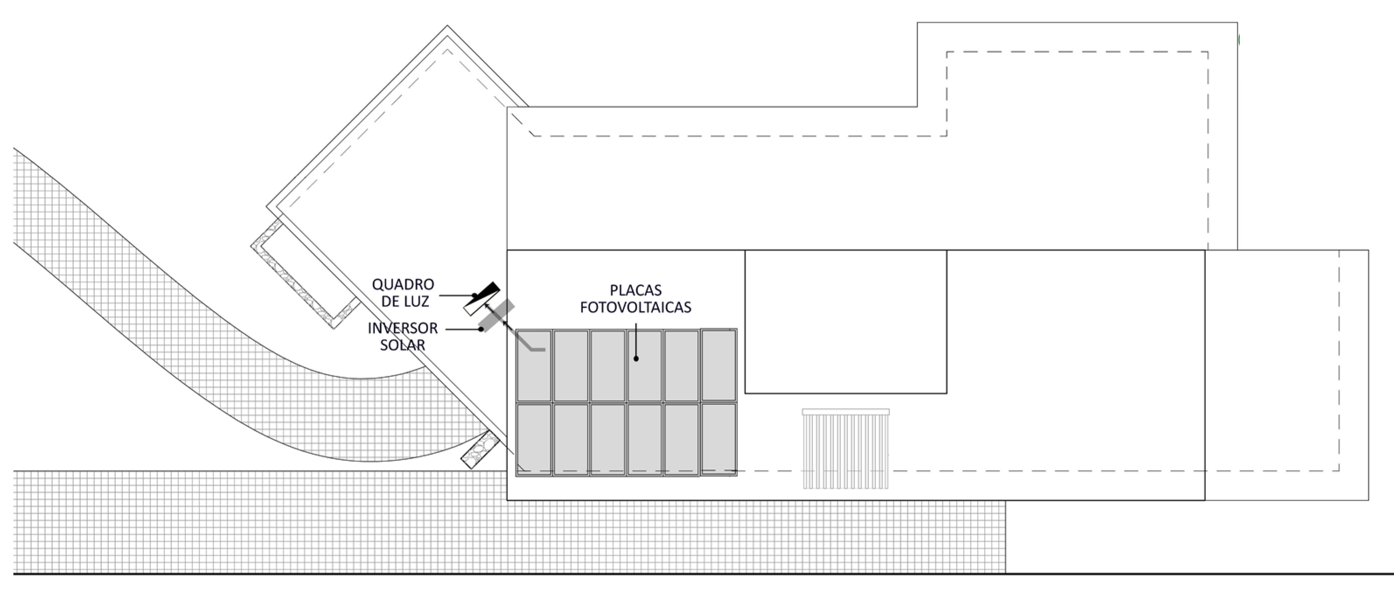
Foram projetadas placas solares fotovoltaicas que captam a luz do sol durante o dia. A energia solar captada é levada para um inversor solar que alterna a corrente contínua para alternada. A energia sai do inversor e é conectada à rede elétrica da casa, normamente o sistema é conectado no quadro de luz. Essa energia pode ser utilizada pelas luzes da casa e eletrodomésticos.
Para conhecer um pouco mais sobre Energia Solar Fotovoltaica, clique aqui!
Já no sistema de aquecimento solar, a água fria da caixa d’água (A) é esquentada no aquecedor solar e é armazenada no reservatório de água quente (B). Após ser esquentada dentro dos tubos a vácuo (C), a água é direcionada para os pontos de consumo (D).

O projeto apresenta um telhado verde na fachada Norte da residência, solução que ameniza a temperatura interna neste ambiente além de melhorar a qualidade do ar.
Há também um espaço para hortas orgânicas, onde os próprios moradores podem plantar e colher seus alimentos livres de agrotóxicos. Os alimentos orgânicos são mais saborosos e concentram mais vitaminas, minerais e outros nutrientes em comparação com os alimentos convencionais.
Na entrada da residência, há um jardim vertical que proporciona conforto ambiental natural, regulando a temperatura, umidade e melhora a qualidade do ar.














Comentários